Browse By Year
2008 2008 Gulf Stream Gulf Breeze 31 USSS Specifications
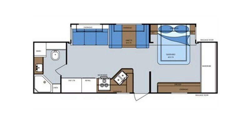
Spec, Photos, and Model Information
-
Start Price$32,321
Vehicle Specifications
2008 Gulf Stream Gulf Breeze 31 USSS
-
Air ConditioningStandard
-
Air Conditioning (BTUs)13500
-
AwningStandard
-
Number Of Bathrooms1
-
Bathroom SinkStandard
-
Max Sleeping Count6
-
Interior Height (in)80
-
Interior Height (mm)2032
-
Length (ft/ft)31
-
Length (ft/in)11
-
Length (m)9.7
-
DVD PlayerNot Available
-
Exterior LadderNot Available
-
Freeze Proof InsulationStandard
-
GeneratorNot Available
-
Heater (BTUs)30000
-
Total Black Water Tank Capacity (gal)38
-
Total Black Water Tank Capacity (l)143.8
-
Total Fresh Water Tank Capacity (gal)45
-
Total Fresh Water Tank Capacity (l)170.3
-
Total Gray Water Tank Capacity (gal)38
-
Total Gray Water Tank Capacity (l)143.8
-
Generic Type (Primary)Travel Trailer
-
Kitchen / Living Area Flooring TypeVinyl
-
Kitchen Table ConfigurationBench Seats
-
Leveling Jack TypeFront Manual / Rear Manual
-
Master BedroomStandard
-
Master Bedroom Flooring TypeVinyl
-
Power Retractable Entry StepsNot Available
-
Basic Warranty (Months)12
Find 2008 Gulf Stream Gulf Breeze 31 USSS for sale
Related RVs
Related Articles
Top 10 RVs for Sale by Owner
Here are our top 10 RVs for sale by owner.
Best Class A RVs for 2022
These are the best class A motorhomes: smallest, diesel, luxury, cheapest, and for winter living.
























