Browse By Year
2008 2008 Keystone Passport 250BH Specifications
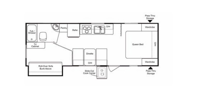
Spec, Photos, and Model Information
-
Start Price$22,582
Vehicle Specifications
2008 Keystone Passport 250BH
-
Air ConditioningStandard
-
Air Conditioning (BTUs)13500
-
AwningStandard
-
Number Of Bathrooms1
-
Bathroom SinkStandard
-
Max Sleeping Count7
-
Length (ft/ft)27
-
Length (ft/in)10
-
Length (m)8.5
-
DVD PlayerNot Available
-
Exterior LadderNot Available
-
Freeze Proof InsulationStandard
-
GeneratorNot Available
-
Total Black Water Tank Capacity (gal)30
-
Total Black Water Tank Capacity (l)113.6
-
Total Fresh Water Tank Capacity (gal)30
-
Total Fresh Water Tank Capacity (l)113.6
-
Total Gray Water Tank Capacity (gal)30
-
Total Gray Water Tank Capacity (l)113.6
-
Generic Type (Primary)Travel Trailer
-
Revision StatusNew
-
Kitchen / Living Area Flooring TypeVinyl
-
Kitchen Table ConfigurationBench Seats
-
Leveling Jack TypeFront Manual / Rear Manual
-
Master BedroomStandard
-
Master Bedroom Flooring TypeVinyl
-
Power Retractable Entry StepsNot Available
-
Basic Warranty (Months)12
-
MSRP22582
-
Total Propane Tank Capacity (gal)9.4
Find 2008 Keystone Passport 250BH for sale
Related RVs
Related Articles
KZ Recreational Vehicles Debuts Lightweight, Sustainable New Sonic X Concept
The 26-in camp trailer utilizes modern materials and focuses on energy efficiency.
Best Class A RVs for 2022
These are the best class A motorhomes: smallest, diesel, luxury, cheapest, and for winter living.
























