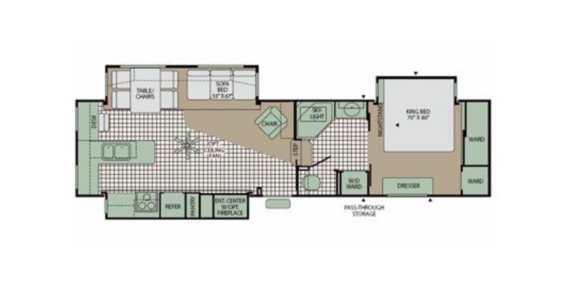
2009 Fleetwood Quantum 325RKTS Specifications
Spec, Photos, and Model Information
-
Start Price$60,951
Vehicle Specifications
2009 Fleetwood Quantum 325RKTS
-
Air ConditioningStandard
-
Air Conditioning (BTUs)15000
-
AwningStandard
-
Number Of Bathrooms1
-
Bathroom SinkStandard
-
Max Sleeping Count6
-
Length (ft/ft)35
-
Length (ft/in)11
-
Length (m)10.9
-
DVD PlayerStandard
-
Exterior LadderStandard
-
Freeze Proof InsulationStandard
-
Total Black Water Tank Capacity (gal)40
-
Total Black Water Tank Capacity (l)151.4
-
Total Fresh Water Tank Capacity (gal)65
-
Total Fresh Water Tank Capacity (l)246.1
-
Total Gray Water Tank Capacity (gal)80
-
Total Gray Water Tank Capacity (l)302.8
-
Generic Type (Primary)Fifth Wheel
-
Revision StatusCarryover
-
Kitchen / Living Area Flooring TypeCarpet / Vinyl
-
Kitchen Table ConfigurationChairs
-
Leveling Jack TypeFront Power / Rear Manual
-
Master BedroomStandard
-
Master Bedroom Flooring TypeCarpet
-
Power Retractable Entry StepsNot Available
-
Basic Warranty (Months)12
-
MSRP60951
-
Total Propane Tank Capacity (gal)14.2
-
Total Propane Tank Capacity (lbs)60
Find 2009 Fleetwood Quantum 325RKTS for sale
Related RVs
Related Articles
KZ Recreational Vehicles Debuts Lightweight, Sustainable New Sonic X Concept
The 26-in camp trailer utilizes modern materials and focuses on energy efficiency.
The GMC MotorHome
The GMC MotorHome: A forgotten '70s relic becomes a 21st-century collectible.
























