Browse By Year
2009 2009 Forest River Cardinal 3802 BH Specifications
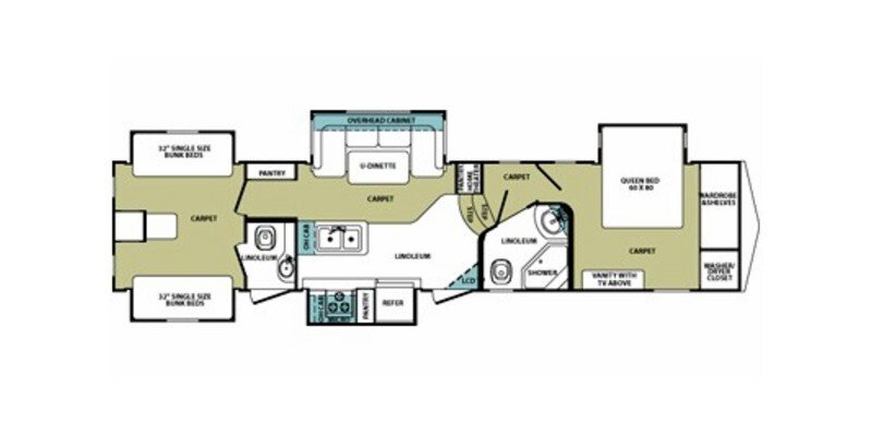
Spec, Photos, and Model Information
-
Start Price$58,617
Vehicle Specifications
2009 Forest River Cardinal 3802 BH
-
Air ConditioningStandard
-
Air Conditioning (BTUs)15000
-
AwningStandard
-
Number Of Bathrooms2
-
Bathroom SinkStandard
-
Max Sleeping Count10
-
Length (ft/ft)40
-
Length (ft/in)3
-
Length (m)12.3
-
DVD PlayerStandard
-
Exterior LadderStandard
-
Freeze Proof InsulationStandard
-
Heater (BTUs)42000
-
Total Black Water Tank Capacity (gal)80
-
Total Black Water Tank Capacity (l)151.4
-
Total Fresh Water Tank Capacity (gal)77
-
Total Fresh Water Tank Capacity (l)291.5
-
Total Gray Water Tank Capacity (gal)80
-
Total Gray Water Tank Capacity (l)302.8
-
Generic Type (Primary)Fifth Wheel
-
Revision StatusNew
-
Kitchen / Living Area Flooring TypeCarpet / Vinyl
-
Kitchen Table ConfigurationBench Seats
-
Leveling Jack TypeFront Power / Rear Power
-
Master BedroomStandard
-
Master Bedroom Flooring TypeCarpet
-
Power Retractable Entry StepsNot Available
-
Basic Warranty (Months)12
-
MSRP58617
-
Total Propane Tank Capacity (gal)14.2
Find 2009 Forest River Cardinal 3802 BH for sale
Related RVs
Related Articles
Winterize Your RV Before Storage to Reduce Costly Repairs
These are the key areas that need attention before you store your RV for the winter months.
Do You Need a Special License to Drive an RV?
Most states do not require a special license to drive an RV weighing under 26,000 lbs. We’ve compiled each state’s RV license requirements, CDL or other rules for 2022.
























