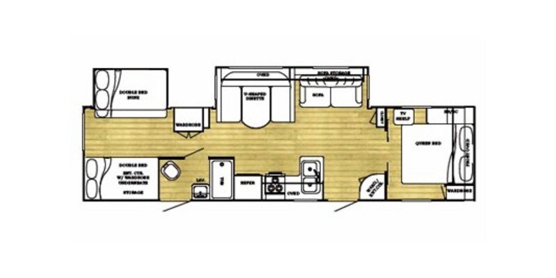
2009 Gulf Stream Innsbruck 32 TBR Specifications
Spec, Photos, and Model Information
-
Start Price$26,101
Vehicle Specifications
2009 Gulf Stream Innsbruck 32 TBR
-
Air ConditioningStandard
-
Air Conditioning (BTUs)13500
-
AwningStandard
-
Number Of Bathrooms1
-
Bathroom SinkStandard
-
Max Sleeping Count12
-
Length (ft/ft)35
-
Length (ft/in)8
-
Length (m)10.9
-
DVD PlayerStandard
-
Freeze Proof InsulationNot Available
-
GeneratorNot Available
-
Heater (BTUs)30000
-
Total Fresh Water Tank Capacity (gal)55
-
Total Fresh Water Tank Capacity (l)208.2
-
Generic Type (Primary)Travel Trailer
-
Revision StatusCarryover
-
Kitchen / Living Area Flooring TypeVinyl
-
Kitchen Table ConfigurationBench Seats
-
Master BedroomStandard
-
Master Bedroom Flooring TypeVinyl
-
Power Retractable Entry StepsNot Available
-
Basic Warranty (Months)12
-
MSRP26101
-
Total Propane Tank Capacity (gal)7.1
-
Total Propane Tank Capacity (lbs)30
-
Rear Video Backup CameraNot Available
-
ShowerStandard
-
Slideout AwningNot Available
-
Number of Slideouts2
Find 2009 Gulf Stream Innsbruck 32 TBR for sale
Related RVs
Related Articles
Best RV Parks and Resorts in Florida
Our Top 10 list of the best RV parks and resorts in Florida.
RV Spotlight: The Winnebago LeSharo
This vintage Class B RV offers many traits that are still appealing to RV shoppers today.
























