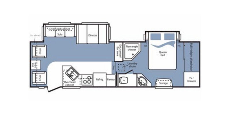
2009 Keystone Cougar 291RLS Specifications
Spec, Photos, and Model Information
-
Start Price$36,798
Vehicle Specifications
2009 Keystone Cougar 291RLS
-
Air ConditioningStandard
-
Air Conditioning (BTUs)15000
-
AwningStandard
-
Number Of Bathrooms1
-
Bathroom SinkStandard
-
Max Sleeping Count6
-
Length (ft/ft)30
-
Length (ft/in)10
-
Length (m)9.4
-
DVD PlayerStandard
-
Exterior LadderNot Available
-
Freeze Proof InsulationStandard
-
GeneratorNot Available
-
Heater (BTUs)30000
-
Total Black Water Tank Capacity (gal)38
-
Total Black Water Tank Capacity (l)143.8
-
Total Fresh Water Tank Capacity (gal)60
-
Total Fresh Water Tank Capacity (l)227.1
-
Total Gray Water Tank Capacity (gal)76
-
Total Gray Water Tank Capacity (l)287.7
-
Generic Type (Primary)Fifth Wheel
-
Revision StatusCarryover
-
Kitchen / Living Area Flooring TypeCarpet / Vinyl
-
Kitchen Table ConfigurationBench Seats
-
Leveling Jack TypeFront Manual / Rear Power
-
Master BedroomStandard
-
Master Bedroom Flooring TypeCarpet
-
Power Retractable Entry StepsNot Available
-
Basic Warranty (Months)12
-
MSRP36798
Find 2009 Keystone Cougar 291RLS for sale
Related RVs
Related Articles
RVers: Five Popular Vehicles to Tow Behind Your RV
We look at a few of the popular vehicles RVers select to tow behind their recreation vehicle.
KZ Recreational Vehicles Debuts Lightweight, Sustainable New Sonic X Concept
The 26-in camp trailer utilizes modern materials and focuses on energy efficiency.
























