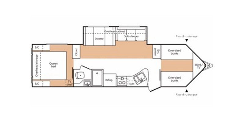
2009 Keystone VR1 310BHS Specifications
Spec, Photos, and Model Information
-
Start Price$28,845
Vehicle Specifications
2009 Keystone VR1 310BHS
-
Air ConditioningStandard
-
Air Conditioning (BTUs)13500
-
AwningStandard
-
Number Of Bathrooms1
-
Bathroom SinkStandard
-
Max Sleeping Count10
-
Length (ft/ft)33
-
Length (ft/in)11
-
Length (m)10.3
-
DVD PlayerStandard
-
Exterior LadderNot Available
-
Freeze Proof InsulationStandard
-
GeneratorNot Available
-
Total Black Water Tank Capacity (gal)28
-
Total Black Water Tank Capacity (l)106
-
Total Fresh Water Tank Capacity (gal)41
-
Total Fresh Water Tank Capacity (l)155.2
-
Total Gray Water Tank Capacity (gal)28
-
Total Gray Water Tank Capacity (l)106
-
Generic Type (Primary)Travel Trailer
-
Revision StatusCarryover
-
Kitchen / Living Area Flooring TypeCarpet / Vinyl
-
Kitchen Table ConfigurationBench Seats
-
Leveling Jack TypeFront Manual / Rear Manual
-
Master BedroomStandard
-
Master Bedroom Flooring TypeCarpet
-
Power Retractable Entry StepsNot Available
-
Basic Warranty (Months)12
-
MSRP28845
-
Total Propane Tank Capacity (gal)9.4
Find 2009 Keystone VR1 310BHS for sale
Related RVs
Related Articles
Best Class A RVs for 2022
These are the best class A motorhomes: smallest, diesel, luxury, cheapest, and for winter living.
Winterize Your RV Before Storage to Reduce Costly Repairs
These are the key areas that need attention before you store your RV for the winter months.
























