2009 R-Vision Trail-Lite TL32BH Specifications
Spec, Photos, and Model Information
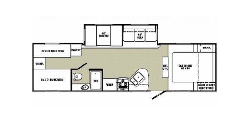
Vehicle Specifications
2009 R-Vision Trail-Lite TL32BH
-
Number Of Bathrooms1
-
Bathroom SinkStandard
-
Max Sleeping Count10
-
Length (ft/ft)33
-
Length (ft/in)9
-
Length (m)10.3
-
Freeze Proof InsulationStandard
-
GeneratorNot Available
-
Heater (BTUs)30000
-
Total Black Water Tank Capacity (gal)40
-
Total Black Water Tank Capacity (l)151.4
-
Total Fresh Water Tank Capacity (gal)40
-
Total Fresh Water Tank Capacity (l)151.4
-
Total Gray Water Tank Capacity (gal)40
-
Total Gray Water Tank Capacity (l)151.4
-
Generic Type (Primary)Travel Trailer
-
Revision StatusCarryover
-
Kitchen / Living Area Flooring TypeVinyl
-
Kitchen Table ConfigurationBench Seats
-
Leveling Jack TypeFront Manual / Rear Manual
-
Master BedroomStandard
-
Master Bedroom Flooring TypeCarpet
-
Power Retractable Entry StepsNot Available
-
Basic Warranty (Months)12
-
Total Propane Tank Capacity (gal)14.2
-
Total Propane Tank Capacity (lbs)60
-
Rear Video Backup CameraNot Available
-
ShowerStandard
-
Slideout AwningNot Available
-
Number of Slideouts1
Find 2009 R-Vision Trail-Lite TL32BH for sale
Related RVs
Related Articles
Airstream Announces 'Slate Edition' Touring Coach Package for Popular Interstate Ext Class B RV
Only 75 examples will be built with this unique, high-end interior package.
KZ Recreational Vehicles Debuts Lightweight, Sustainable New Sonic X Concept
The 26-in camp trailer utilizes modern materials and focuses on energy efficiency.
























