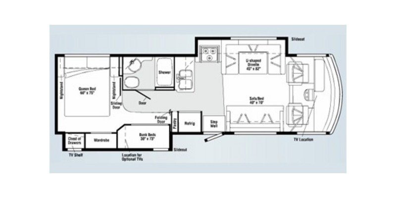
2009 Winnebago Vista 32K Specifications
Spec, Photos, and Model Information
-
Start Price$98,604
Vehicle Specifications
2009 Winnebago Vista 32K
-
Air ConditioningStandard
-
Air Conditioning (BTUs)14800
-
Number Of Bathrooms1
-
Bathroom SinkStandard
-
Max Sleeping Count8
-
Fuel Capacity (gal)75
-
Fuel Capacity (l)283.9
-
Interior Height (in)80
-
Interior Height (mm)2032
-
Length (ft/ft)33
-
Length (m)10.1
-
Chassis BrandFord
-
Displacement (l)6.8
-
Engine Brand NameTriton®
-
Engine TypeV10
-
Fuel TypeGas
-
Horsepower (bhp)362
-
Freeze Proof InsulationNot Available
-
GeneratorStandard
-
Heater (BTUs)35000
-
Total Black Water Tank Capacity (gal)44
-
Total Black Water Tank Capacity (l)166.6
-
Total Fresh Water Tank Capacity (gal)75
-
Total Fresh Water Tank Capacity (l)283.9
-
Total Gray Water Tank Capacity (gal)46
-
Total Gray Water Tank Capacity (l)174.1
-
Generic Type (Primary)Class A
-
Revision StatusCarryover
-
Kitchen / Living Area Flooring TypeCarpet / Vinyl
-
Kitchen Table ConfigurationU-shaped Dinette
Find 2009 Winnebago Vista 32K for sale
Related RVs
Related Articles
Winterize Your RV Before Storage to Reduce Costly Repairs
These are the key areas that need attention before you store your RV for the winter months.
KZ Recreational Vehicles Debuts Lightweight, Sustainable New Sonic X Concept
The 26-in camp trailer utilizes modern materials and focuses on energy efficiency.
























