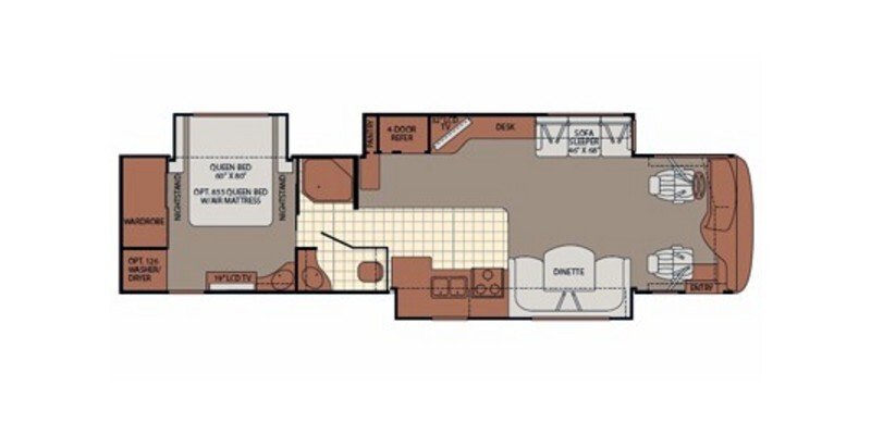
2010 Fleetwood Expedition 38Y Specifications
Spec, Photos, and Model Information
Vehicle Specifications
2010 Fleetwood Expedition 38Y
-
Air ConditioningStandard
-
AwningStandard
-
Number Of Bathrooms1
-
Bathroom SinkStandard
-
Max Sleeping Count6
-
Fuel Capacity (gal)100
-
Fuel Capacity (l)378.5
-
Interior Height (in)84
-
Interior Height (mm)2133.6
-
Length (ft/ft)38
-
Length (ft/in)4
-
Length (m)11.7
-
DVD PlayerStandard
-
Chassis BrandFreightliner
-
Displacement (l)6.7
-
Engine Brand NameCummins
-
Engine TypeI6 Diesel Pusher
-
Fuel TypeDiesel
-
Horsepower (bhp)325
-
Exterior LadderStandard
-
Freeze Proof InsulationStandard
-
GeneratorStandard
-
Heater (BTUs)45000
-
Total Black Water Tank Capacity (gal)50
-
Total Black Water Tank Capacity (l)189.3
-
Total Fresh Water Tank Capacity (gal)100
-
Total Fresh Water Tank Capacity (l)378.5
-
Total Gray Water Tank Capacity (gal)75
-
Total Gray Water Tank Capacity (l)283.9
-
Generic Type (Primary)Class A
Find 2010 Fleetwood Expedition 38Y for sale
Related RVs
Related Articles
Best RV Parks and Resorts in Florida
Our Top 10 list of the best RV parks and resorts in Florida.
RV Spotlight: The Winnebago LeSharo
This vintage Class B RV offers many traits that are still appealing to RV shoppers today.
























