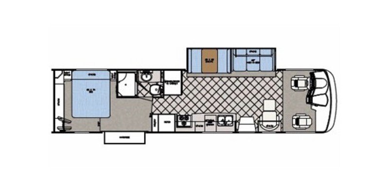
2010 Gulf Stream Crescendo 356 Specifications
Spec, Photos, and Model Information
-
Start Price$198,189
Vehicle Specifications
2010 Gulf Stream Crescendo 356
-
Air ConditioningStandard
-
Air Conditioning (BTUs)27000
-
AwningStandard
-
Number Of Bathrooms1
-
Bathroom SinkStandard
-
Max Sleeping Count6
-
Fuel Capacity (gal)100
-
Fuel Capacity (l)378.5
-
Interior Height (in)84
-
Interior Height (mm)2133.6
-
Length (ft/ft)38
-
Length (m)11.6
-
Chassis BrandFreightliner
-
Displacement (l)6.7
-
Engine Brand NameCummins
-
Engine TypeI6 Diesel Pusher
-
Fuel TypeDiesel
-
Horsepower (bhp)340
-
Exterior LadderStandard
-
Freeze Proof InsulationStandard
-
GeneratorStandard
-
Heater (BTUs)65000
-
Total Black Water Tank Capacity (gal)75
-
Total Black Water Tank Capacity (l)283.9
-
Total Fresh Water Tank Capacity (gal)70
-
Total Fresh Water Tank Capacity (l)265
-
Total Gray Water Tank Capacity (gal)75
-
Total Gray Water Tank Capacity (l)283.9
-
Generic Type (Primary)Class A
-
Revision StatusCarryover
Find 2010 Gulf Stream Crescendo 356 for sale
Related RVs
Related Articles
Do You Need a Special License to Drive an RV?
Most states do not require a special license to drive an RV weighing under 26,000 lbs. We’ve compiled each state’s RV license requirements, CDL or other rules for 2022.
Best Class A RVs for 2022
These are the best class A motorhomes: smallest, diesel, luxury, cheapest, and for winter living.
























