Browse By Year
2011 2011 Coachmen Freedom Express 296REDS Specifications
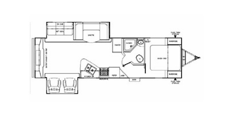
Spec, Photos, and Model Information
-
Start Price$36,555
Vehicle Specifications
2011 Coachmen Freedom Express 296REDS
-
Air ConditioningStandard
-
Air Conditioning (BTUs)13500
-
AwningStandard
-
Number Of Bathrooms1
-
Bathroom SinkStandard
-
Max Sleeping Count6
-
Length (ft/ft)34
-
Length (ft/in)2
-
Length (m)10.4
-
Exterior LadderNot Available
-
Freeze Proof InsulationNot Available
-
GeneratorNot Available
-
Heater (BTUs)30000
-
Total Black Water Tank Capacity (gal)32
-
Total Black Water Tank Capacity (l)121.1
-
Total Fresh Water Tank Capacity (gal)49
-
Total Fresh Water Tank Capacity (l)185.5
-
Total Gray Water Tank Capacity (gal)34
-
Total Gray Water Tank Capacity (l)128.7
-
Generic Type (Primary)Travel Trailer
-
Revision StatusNew
-
Kitchen / Living Area Flooring TypeCarpet / Vinyl
-
Kitchen Table ConfigurationU-shaped Dinette
-
Leveling Jack TypeFront Manual / Rear Manual
-
Master BedroomStandard
-
Master Bedroom Flooring TypeVinyl
-
Power Retractable Entry StepsNot Available
-
Basic Warranty (Months)12
-
MSRP36555
-
Total Propane Tank Capacity (gal)9.4
Find 2011 Coachmen Freedom Express 296REDS for sale
Related RVs
Related Articles
The GMC MotorHome
The GMC MotorHome: A forgotten '70s relic becomes a 21st-century collectible.
Best Class A RVs for 2022
These are the best class A motorhomes: smallest, diesel, luxury, cheapest, and for winter living.
























