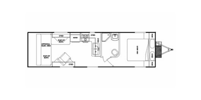
2011 Gulf Stream Track & Trail 28RTH Specifications
Spec, Photos, and Model Information
-
Start Price$27,927
Vehicle Specifications
2011 Gulf Stream Track & Trail 28RTH
-
Air ConditioningStandard
-
Air Conditioning (BTUs)13500
-
AwningStandard
-
Number Of Bathrooms1
-
Bathroom SinkStandard
-
Max Sleeping Count5
-
Length (ft/ft)33
-
Length (ft/in)4
-
Length (m)10.2
-
DVD PlayerNot Available
-
Exterior LadderNot Available
-
Freeze Proof InsulationNot Available
-
GeneratorNot Available
-
Total Black Water Tank Capacity (gal)37
-
Total Black Water Tank Capacity (l)140.1
-
Total Fresh Water Tank Capacity (gal)51
-
Total Fresh Water Tank Capacity (l)193.1
-
Total Gray Water Tank Capacity (gal)37
-
Total Gray Water Tank Capacity (l)140.1
-
Generic Type (Primary)Toy Hauler
-
Revision StatusNew
-
Kitchen / Living Area Flooring TypeVinyl
-
Kitchen Table ConfigurationNone
-
Leveling Jack TypeFront Manual / Rear Manual
-
Master BedroomStandard
-
Master Bedroom Flooring TypeVinyl
-
Power Retractable Entry StepsNot Available
-
Basic Warranty (Months)12
-
MSRP27927
-
Total Propane Tank Capacity (gal)9.4
Find 2011 Gulf Stream Track & Trail 28RTH for sale
Related RVs
Related Articles
Do You Need a Special License to Drive an RV?
Most states do not require a special license to drive an RV weighing under 26,000 lbs. We’ve compiled each state’s RV license requirements, CDL or other rules for 2022.
KZ Recreational Vehicles Debuts Lightweight, Sustainable New Sonic X Concept
The 26-in camp trailer utilizes modern materials and focuses on energy efficiency.
























