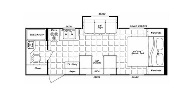
2011 Gulf Stream TrailMaster 23 RBS Specifications
Spec, Photos, and Model Information
-
Start Price$19,408
Vehicle Specifications
2011 Gulf Stream TrailMaster 23 RBS
-
Air ConditioningStandard
-
Air Conditioning (BTUs)13500
-
AwningStandard
-
Number Of Bathrooms1
-
Bathroom SinkStandard
-
Max Sleeping Count6
-
Interior Height (in)82
-
Interior Height (mm)2082.8
-
Length (ft/ft)24
-
Length (ft/in)5
-
Length (m)7.4
-
DVD PlayerStandard
-
Exterior LadderNot Available
-
Freeze Proof InsulationNot Available
-
GeneratorNot Available
-
Heater (BTUs)25000
-
Total Black Water Tank Capacity (gal)37
-
Total Black Water Tank Capacity (l)140.1
-
Total Fresh Water Tank Capacity (gal)45
-
Total Fresh Water Tank Capacity (l)170.3
-
Total Gray Water Tank Capacity (gal)37
-
Total Gray Water Tank Capacity (l)140.1
-
Generic Type (Primary)Travel Trailer
-
Revision StatusCarryover
-
Kitchen / Living Area Flooring TypeVinyl
-
Kitchen Table ConfigurationBench Seats
-
Leveling Jack TypeFront Manual / Rear Manual
-
Master BedroomStandard
-
Master Bedroom Flooring TypeCarpet
-
Power Retractable Entry StepsNot Available
Find 2011 Gulf Stream TrailMaster 23 RBS for sale
Related RVs
Related Articles
Airstream Announces 'Slate Edition' Touring Coach Package for Popular Interstate Ext Class B RV
Only 75 examples will be built with this unique, high-end interior package.
Best Class A RVs for 2022
These are the best class A motorhomes: smallest, diesel, luxury, cheapest, and for winter living.
























