Browse By Year
2011 2011 Gulf Stream TrailMaster 250 RKS Rally Specifications
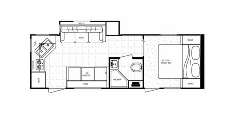
Spec, Photos, and Model Information
Vehicle Specifications
2011 Gulf Stream TrailMaster 250 RKS Rally
-
Air ConditioningStandard
-
Air Conditioning (BTUs)13500
-
AwningStandard
-
Number Of Bathrooms1
-
Bathroom SinkStandard
-
Max Sleeping Count6
-
Interior Height (in)82
-
Interior Height (mm)2082.8
-
Length (ft/ft)28
-
Length (ft/in)3
-
Length (m)8.6
-
DVD PlayerStandard
-
Exterior LadderNot Available
-
Freeze Proof InsulationNot Available
-
GeneratorNot Available
-
Heater (BTUs)25000
-
Total Black Water Tank Capacity (gal)37
-
Total Black Water Tank Capacity (l)140.1
-
Total Fresh Water Tank Capacity (gal)51
-
Total Fresh Water Tank Capacity (l)193.1
-
Total Gray Water Tank Capacity (gal)37
-
Total Gray Water Tank Capacity (l)140.1
-
Generic Type (Primary)Travel Trailer
-
Revision StatusUpgraded
-
Kitchen / Living Area Flooring TypeVinyl
-
Kitchen Table ConfigurationBench Seats
-
Master BedroomStandard
-
Master Bedroom Flooring TypeCarpet
-
Power Retractable Entry StepsNot Available
-
Basic Warranty (Months)12
Find 2011 Gulf Stream TrailMaster 250 RKS Rally for sale
Related RVs
Related Articles
The GMC MotorHome
The GMC MotorHome: A forgotten '70s relic becomes a 21st-century collectible.
Best RV Parks and Resorts in Florida
Our Top 10 list of the best RV parks and resorts in Florida.
























