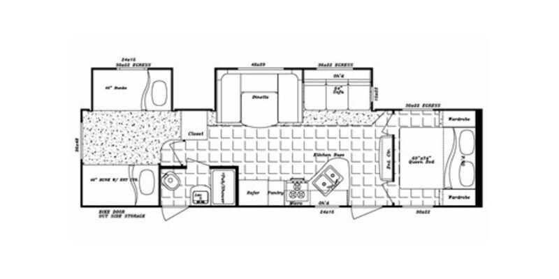
2011 Gulf Stream TrailMaster 321 TBS Specifications
Spec, Photos, and Model Information
-
Start Price$25,201
Vehicle Specifications
2011 Gulf Stream TrailMaster 321 TBS
-
Air ConditioningStandard
-
Air Conditioning (BTUs)13500
-
AwningStandard
-
Number Of Bathrooms1
-
Bathroom SinkStandard
-
Max Sleeping Count9
-
Interior Height (in)82
-
Interior Height (mm)2082.8
-
Length (ft/ft)36
-
Length (m)11
-
DVD PlayerStandard
-
Exterior LadderNot Available
-
Freeze Proof InsulationNot Available
-
GeneratorNot Available
-
Heater (BTUs)30000
-
Total Black Water Tank Capacity (gal)37
-
Total Black Water Tank Capacity (l)140.1
-
Total Fresh Water Tank Capacity (gal)45
-
Total Fresh Water Tank Capacity (l)170.3
-
Total Gray Water Tank Capacity (gal)74
-
Total Gray Water Tank Capacity (l)140.1
-
Generic Type (Primary)Travel Trailer
-
Revision StatusCarryover
-
Kitchen / Living Area Flooring TypeCarpet / Vinyl
-
Kitchen Table ConfigurationU-shaped Dinette
-
Leveling Jack TypeFront Manual / Rear Manual
-
Master BedroomStandard
-
Master Bedroom Flooring TypeCarpet
-
Power Retractable Entry StepsNot Available
-
Basic Warranty (Months)12
Find 2011 Gulf Stream TrailMaster 321 TBS for sale
Related RVs
Related Articles
Winterize Your RV Before Storage to Reduce Costly Repairs
These are the key areas that need attention before you store your RV for the winter months.
Top 10 RVs for Sale by Owner
Here are our top 10 RVs for sale by owner.
























