Browse By Year
2012 2012 Coachmen Prism P 220 Specifications
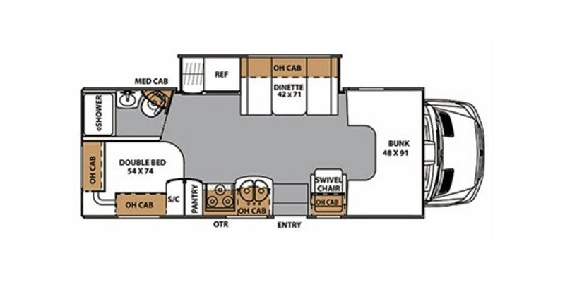
Spec, Photos, and Model Information
-
Start Price$111,808
Vehicle Specifications
2012 Coachmen Prism P 220
-
Air ConditioningStandard
-
Air Conditioning (BTUs)13500
-
AwningStandard
-
Number Of Bathrooms1
-
Bathroom SinkStandard
-
Max Sleeping Count6
-
Fuel Capacity (gal)26
-
Fuel Capacity (l)98.4
-
Interior Height (in)82
-
Interior Height (mm)2082.8
-
Length (ft/ft)25
-
Length (ft/in)4
-
Length (m)7.7
-
DVD PlayerStandard
-
Chassis BrandMercedes-Benz® Sprinter
-
Displacement (l)3
-
Engine Brand NameMercedes-Benz®
-
Engine TypeV6
-
Fuel TypeDiesel
-
Horsepower (bhp)188
-
Exterior LadderStandard
-
Freeze Proof InsulationStandard
-
GeneratorStandard
-
Heater (BTUs)20000
-
Total Black Water Tank Capacity (gal)22
-
Total Black Water Tank Capacity (l)83.3
-
Total Fresh Water Tank Capacity (gal)30
-
Total Fresh Water Tank Capacity (l)113.6
-
Total Gray Water Tank Capacity (gal)25
-
Total Gray Water Tank Capacity (l)94.6
Find 2012 Coachmen Prism P 220 for sale
Related RVs
Related Articles
Airstream Announces 'Slate Edition' Touring Coach Package for Popular Interstate Ext Class B RV
Only 75 examples will be built with this unique, high-end interior package.
Best RV Parks and Resorts in Florida
Our Top 10 list of the best RV parks and resorts in Florida.
























