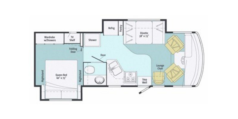
2012 Winnebago Vista 26P Specifications
Spec, Photos, and Model Information
-
Start Price$91,664
Vehicle Specifications
2012 Winnebago Vista 26P
-
Air ConditioningStandard
-
Air Conditioning (BTUs)14800
-
Number Of Bathrooms1
-
Bathroom SinkStandard
-
Max Sleeping Count4
-
Fuel Capacity (gal)80
-
Fuel Capacity (l)302.8
-
Interior Height (in)80
-
Interior Height (mm)2032
-
Length (ft/ft)26
-
Length (ft/in)11
-
Length (m)8.2
-
Chassis BrandFord
-
Displacement (l)6.8
-
Engine Brand NameTriton®
-
Engine TypeV10
-
Fuel TypeGas
-
Horsepower (bhp)362
-
Freeze Proof InsulationStandard
-
GeneratorStandard
-
Heater (BTUs)30000
-
Total Black Water Tank Capacity (gal)43
-
Total Black Water Tank Capacity (l)162.8
-
Total Fresh Water Tank Capacity (gal)60
-
Total Fresh Water Tank Capacity (l)227.1
-
Total Gray Water Tank Capacity (gal)38
-
Total Gray Water Tank Capacity (l)143.8
-
Generic Type (Primary)Class A
-
Revision StatusCarryover
-
Kitchen / Living Area Flooring TypeCarpet / Vinyl
Find 2012 Winnebago Vista 26P for sale
Related RVs
Related Articles
The GMC MotorHome
The GMC MotorHome: A forgotten '70s relic becomes a 21st-century collectible.
KZ Recreational Vehicles Debuts Lightweight, Sustainable New Sonic X Concept
The 26-in camp trailer utilizes modern materials and focuses on energy efficiency.
























