Browse By Year
2013 2013 Shasta Phoenix 29RL Specifications
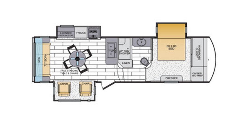
Spec, Photos, and Model Information
Vehicle Specifications
2013 Shasta Phoenix 29RL
-
Air ConditioningStandard
-
Air Conditioning (BTUs)13500
-
AwningStandard
-
Number Of Bathrooms1
-
Bathroom SinkStandard
-
Max Sleeping Count4
-
Length (ft/ft)31
-
Length (m)9.4
-
DVD PlayerStandard
-
Exterior LadderNot Available
-
Freeze Proof InsulationStandard
-
GeneratorNot Available
-
Heater (BTUs)34000
-
Total Black Water Tank Capacity (gal)45
-
Total Black Water Tank Capacity (l)170.3
-
Total Fresh Water Tank Capacity (gal)50
-
Total Fresh Water Tank Capacity (l)189.3
-
Total Gray Water Tank Capacity (gal)45
-
Total Gray Water Tank Capacity (l)170.3
-
Generic Type (Primary)Fifth Wheel
-
Kitchen / Living Area Flooring TypeCarpet / Vinyl
-
Kitchen Table ConfigurationChairs
-
Leveling Jack TypeFront Power / Rear Manual
-
Master BedroomStandard
-
Master Bedroom Flooring TypeCarpet
-
Power Retractable Entry StepsNot Available
-
Basic Warranty (Months)12
-
Total Propane Tank Capacity (gal)14.2
-
Total Propane Tank Capacity (lbs)60
-
Rear Video Backup CameraNot Available
Find 2013 Shasta Phoenix 29RL for sale
Related RVs
Related Articles
Here Are All the Crazy Overlanding Vehicles I Saw at Overland Expo West
I recap this year's expo highlighting a market for enthusiasts who use their vehicles to combine off-roading with camping.
RV Spotlight: The Winnebago LeSharo
This vintage Class B RV offers many traits that are still appealing to RV shoppers today.
























