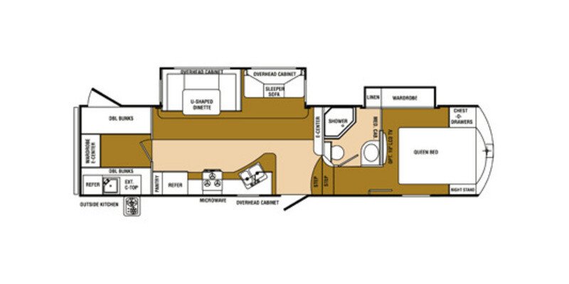
2014 SunnyBrook Raven 2980BH Specifications
Spec, Photos, and Model Information
Vehicle Specifications
2014 SunnyBrook Raven 2980BH
-
Air ConditioningStandard
-
Air Conditioning (BTUs)13500
-
AwningStandard
-
Number Of Bathrooms1
-
Bathroom SinkStandard
-
Max Sleeping Count10
-
Length (ft/ft)35
-
Length (ft/in)5
-
Length (m)10.8
-
DVD PlayerStandard
-
Exterior LadderStandard
-
Freeze Proof InsulationStandard
-
Heater (BTUs)34000
-
Total Black Water Tank Capacity (gal)44
-
Total Black Water Tank Capacity (l)166.6
-
Total Fresh Water Tank Capacity (gal)50
-
Total Fresh Water Tank Capacity (l)189.3
-
Total Gray Water Tank Capacity (gal)84
-
Total Gray Water Tank Capacity (l)318
-
Generic Type (Primary)Fifth Wheel
-
Revision StatusCarryover
-
Kitchen / Living Area Flooring TypeCarpet / Vinyl
-
Kitchen Table ConfigurationBench Seats
-
Leveling Jack TypeFront Power / Rear Manual
-
Master BedroomStandard
-
Master Bedroom Flooring TypeCarpet
-
Power Retractable Entry StepsNot Available
-
Basic Warranty (Months)12
-
Total Propane Tank Capacity (gal)14.2
-
Total Propane Tank Capacity (lbs)60
Find 2014 SunnyBrook Raven 2980BH for sale
Related RVs
Related Articles
Best Class A RVs for 2022
These are the best class A motorhomes: smallest, diesel, luxury, cheapest, and for winter living.
RVers: Five Popular Vehicles to Tow Behind Your RV
We look at a few of the popular vehicles RVers select to tow behind their recreation vehicle.
























