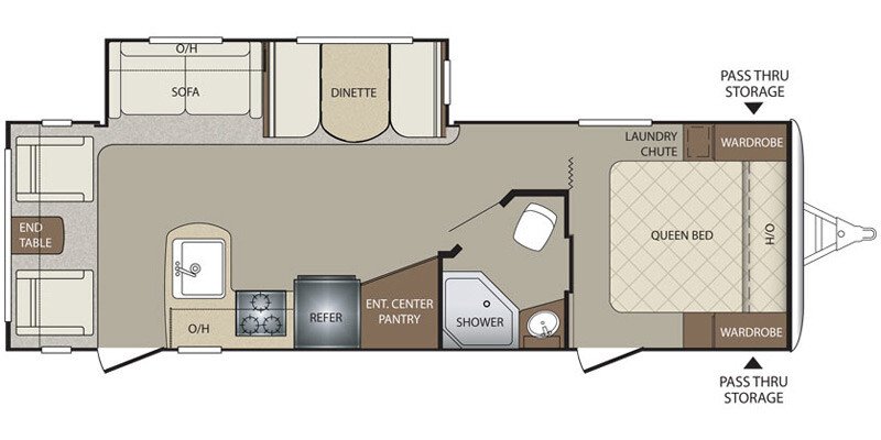
2015 Keystone Bullet 269RLS Specifications
Spec, Photos, and Model Information
-
Start Price$30,242
Vehicle Specifications
2015 Keystone Bullet 269RLS
-
Air ConditioningStandard
-
Air Conditioning (BTUs)13500
-
AwningStandard
-
Number Of Bathrooms1
-
Bathroom SinkStandard
-
Max Sleeping Count6
-
Interior Height (in)78
-
Interior Height (mm)1981.2
-
Length (ft/ft)30
-
Length (ft/in)11
-
Length (m)9.4
-
DVD PlayerStandard
-
Exterior LadderNot Available
-
Freeze Proof InsulationStandard
-
GeneratorNot Available
-
Heater (BTUs)30000
-
Total Black Water Tank Capacity (gal)30
-
Total Black Water Tank Capacity (l)113.6
-
Total Fresh Water Tank Capacity (gal)43
-
Total Fresh Water Tank Capacity (l)162.8
-
Total Gray Water Tank Capacity (gal)30
-
Total Gray Water Tank Capacity (l)113.6
-
Generic Type (Primary)Travel Trailer
-
Revision StatusNew
-
Kitchen / Living Area Flooring TypeCarpet / Vinyl
-
Kitchen Table ConfigurationBench Seats
-
Leveling Jack TypeFront Manual / Rear Manual
-
Master BedroomStandard
-
Master Bedroom Flooring TypeVinyl
-
Power Retractable Entry StepsNot Available
Find 2015 Keystone Bullet 269RLS for sale
Related RVs
Related Articles
Airstream Announces 'Slate Edition' Touring Coach Package for Popular Interstate Ext Class B RV
Only 75 examples will be built with this unique, high-end interior package.
RV Spotlight: The Winnebago LeSharo
This vintage Class B RV offers many traits that are still appealing to RV shoppers today.
























