2016 Dutchmen Aspen Trail 3010BHDSW Specifications
Spec, Photos, and Model Information
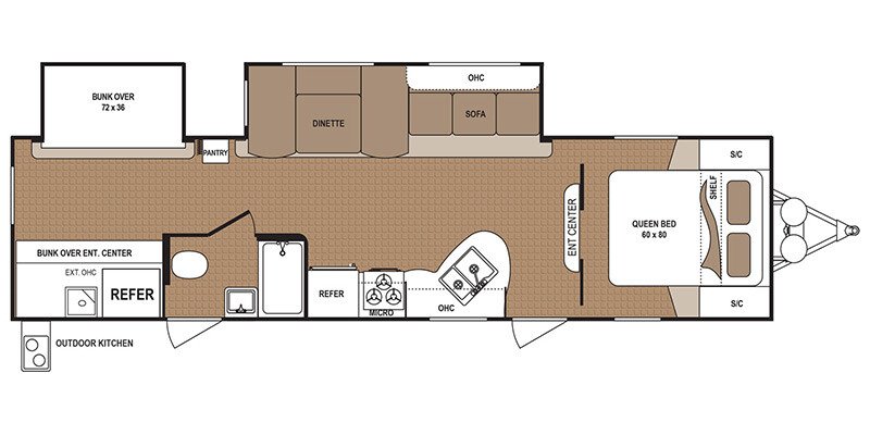
Vehicle Specifications
2016 Dutchmen Aspen Trail 3010BHDSW
-
Air ConditioningStandard
-
Air Conditioning (BTUs)13500
-
AwningStandard
-
Number Of Bathrooms1
-
Bathroom SinkStandard
-
Max Sleeping Count10
-
Interior Height (in)82
-
Interior Height (mm)2082.8
-
Length (ft/ft)35
-
Length (ft/in)9
-
Length (m)10.9
-
DVD PlayerStandard
-
Exterior LadderNot Available
-
Freeze Proof InsulationStandard
-
GeneratorNot Available
-
Heater (BTUs)34000
-
Total Black Water Tank Capacity (gal)42
-
Total Black Water Tank Capacity (l)159
-
Total Fresh Water Tank Capacity (gal)52
-
Total Fresh Water Tank Capacity (l)196.8
-
Total Gray Water Tank Capacity (gal)42
-
Total Gray Water Tank Capacity (l)159
-
Generic Type (Primary)Travel Trailer
-
Revision StatusNew
-
Kitchen / Living Area Flooring TypeCarpet / Vinyl
-
Kitchen Table ConfigurationU-shaped Dinette
-
Leveling Jack TypeFront Manual / Rear Manual
-
Master BedroomStandard
-
Master Bedroom Flooring TypeVinyl
-
Power Retractable Entry StepsNot Available
Find 2016 Dutchmen Aspen Trail 3010BHDSW for sale
Related RVs
Related Articles
Airstream Announces 'Slate Edition' Touring Coach Package for Popular Interstate Ext Class B RV
Only 75 examples will be built with this unique, high-end interior package.
Shop RV Insurance Before You Buy
Make sure to obtain proper coverage prior to driving your new RV off the dealer lot.
























