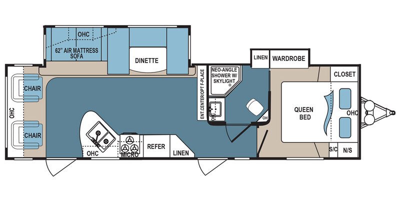
2016 Dutchmen Denali 266 RL Specifications
Spec, Photos, and Model Information
-
Start Price$36,840
Vehicle Specifications
2016 Dutchmen Denali 266 RL
-
Air ConditioningStandard
-
Air Conditioning (BTUs)13500
-
AwningStandard
-
Number Of Bathrooms1
-
Bathroom SinkStandard
-
Max Sleeping Count6
-
Length (ft/ft)34
-
Length (ft/in)6
-
Length (m)10.5
-
DVD PlayerStandard
-
Exterior LadderStandard
-
Freeze Proof InsulationStandard
-
GeneratorNot Available
-
Heater (BTUs)34000
-
Total Black Water Tank Capacity (gal)42
-
Total Black Water Tank Capacity (l)159
-
Total Fresh Water Tank Capacity (gal)56
-
Total Fresh Water Tank Capacity (l)212
-
Total Gray Water Tank Capacity (gal)84
-
Total Gray Water Tank Capacity (l)318
-
Generic Type (Primary)Travel Trailer
-
Revision StatusCarryover
-
Kitchen / Living Area Flooring TypeCarpet / Vinyl
-
Kitchen Table ConfigurationU-shaped Dinette
-
Leveling Jack TypeFront Power / Rear Power
-
Master BedroomStandard
-
Master Bedroom Flooring TypeCarpet
-
Power Retractable Entry StepsNot Available
-
Basic Warranty (Months)12
-
MSRP36840
Find 2016 Dutchmen Denali 266 RL for sale
Related RVs
Related Articles
Shop RV Insurance Before You Buy
Make sure to obtain proper coverage prior to driving your new RV off the dealer lot.
RV Spotlight: The Winnebago LeSharo
This vintage Class B RV offers many traits that are still appealing to RV shoppers today.
























