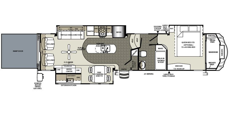
2016 Forest River Sierra 360PDEK Specifications
Spec, Photos, and Model Information
-
Start Price$62,392
Vehicle Specifications
2016 Forest River Sierra 360PDEK
-
Air ConditioningStandard
-
Air Conditioning (BTUs)15000
-
AwningStandard
-
Number Of Bathrooms1
-
Bathroom SinkStandard
-
Max Sleeping Count4
-
Interior Height (in)84
-
Interior Height (mm)2133.6
-
Length (ft/ft)41
-
Length (ft/in)11
-
Length (m)12.8
-
DVD PlayerStandard
-
Exterior LadderStandard
-
GeneratorNot Available
-
Heater (BTUs)35000
-
Total Black Water Tank Capacity (gal)50
-
Total Black Water Tank Capacity (l)189.3
-
Total Fresh Water Tank Capacity (gal)60
-
Total Fresh Water Tank Capacity (l)227.1
-
Total Gray Water Tank Capacity (gal)95
-
Total Gray Water Tank Capacity (l)359.6
-
Generic Type (Primary)Fifth Wheel
-
Revision StatusCarryover
-
Kitchen / Living Area Flooring TypeCarpet / Vinyl
-
Kitchen Table ConfigurationChairs
-
Leveling Jack TypeFront Power / Rear Manual
-
Master BedroomStandard
-
Master Bedroom Flooring TypeCarpet
-
Power Retractable Entry StepsNot Available
-
Basic Warranty (Months)12
Find 2016 Forest River Sierra 360PDEK for sale
Related RVs
Related Articles
RV Spotlight: The Winnebago LeSharo
This vintage Class B RV offers many traits that are still appealing to RV shoppers today.
What Are The Different RV Classes?
Recreational vehicles are available in three main classes. Here's how to tell them apart from one another.
























