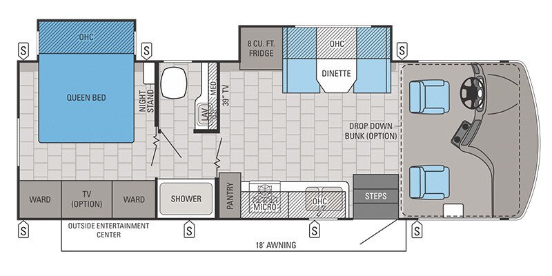
2016 Jayco Alante 26Y Specifications
Spec, Photos, and Model Information
-
Start Price$110,677
Vehicle Specifications
2016 Jayco Alante 26Y
-
Air ConditioningStandard
-
Air Conditioning (BTUs)15000
-
AwningStandard
-
Number Of Bathrooms1
-
Bathroom SinkStandard
-
Max Sleeping Count6
-
Fuel Capacity (gal)80
-
Fuel Capacity (l)302.8
-
Interior Height (in)84
-
Interior Height (mm)2133.6
-
Length (m)8.3
-
DVD PlayerStandard
-
Chassis BrandFord
-
Displacement (l)6.8
-
Engine Brand NameTritonĀ®
-
Engine TypeV10
-
Fuel TypeGas
-
Horsepower (bhp)362
-
Exterior LadderStandard
-
Freeze Proof InsulationNot Available
-
GeneratorStandard
-
Heater (BTUs)31000
-
Total Black Water Tank Capacity (gal)32
-
Total Black Water Tank Capacity (l)121.1
-
Total Fresh Water Tank Capacity (gal)32.8
-
Total Fresh Water Tank Capacity (l)124.2
-
Total Gray Water Tank Capacity (gal)40
-
Total Gray Water Tank Capacity (l)151.4
-
Generic Type (Primary)Class A
-
Revision StatusNew
Find 2016 Jayco Alante 26Y for sale
Related RVs
Related Articles
RV Spotlight: The Winnebago LeSharo
This vintage Class B RV offers many traits that are still appealing to RV shoppers today.
KZ Recreational Vehicles Debuts Lightweight, Sustainable New Sonic X Concept
The 26-in camp trailer utilizes modern materials and focuses on energy efficiency.
























