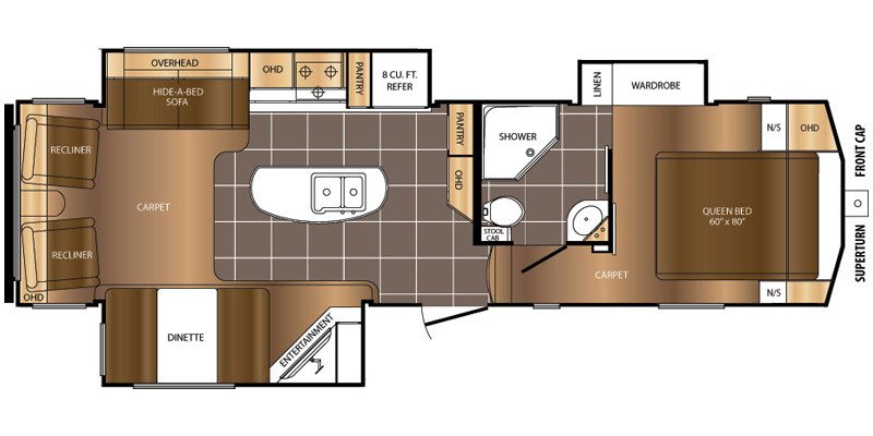
2016 Prime Time Manufacturing Crusader 294RLT Specifications
Spec, Photos, and Model Information
-
Start Price$50,453
Vehicle Specifications
2016 Prime Time Manufacturing Crusader 294RLT
-
Air ConditioningStandard
-
Air Conditioning (BTUs)15000
-
AwningStandard
-
Number Of Bathrooms1
-
Bathroom SinkStandard
-
Max Sleeping Count6
-
Length (ft/ft)32
-
Length (ft/in)11
-
Length (m)10
-
DVD PlayerStandard
-
Exterior LadderStandard
-
Freeze Proof InsulationStandard
-
GeneratorNot Available
-
Heater (BTUs)35000
-
Total Black Water Tank Capacity (gal)35
-
Total Black Water Tank Capacity (l)132.5
-
Total Fresh Water Tank Capacity (gal)60
-
Total Fresh Water Tank Capacity (l)227.1
-
Total Gray Water Tank Capacity (gal)70
-
Total Gray Water Tank Capacity (l)265
-
Generic Type (Primary)Fifth Wheel
-
Revision StatusCarryover
-
Kitchen / Living Area Flooring TypeCarpet / Vinyl
-
Kitchen Table ConfigurationBench Seats
-
Leveling Jack TypeFront Power / Rear Manual
-
Master BedroomStandard
-
Master Bedroom Flooring TypeCarpet
-
Power Retractable Entry StepsNot Available
-
Basic Warranty (Months)12
-
MSRP50453
Find 2016 Prime Time Manufacturing Crusader 294RLT for sale
Related RVs
Related Articles
KZ Recreational Vehicles Debuts Lightweight, Sustainable New Sonic X Concept
The 26-in camp trailer utilizes modern materials and focuses on energy efficiency.
Best Class A RVs for 2022
These are the best class A motorhomes: smallest, diesel, luxury, cheapest, and for winter living.
























