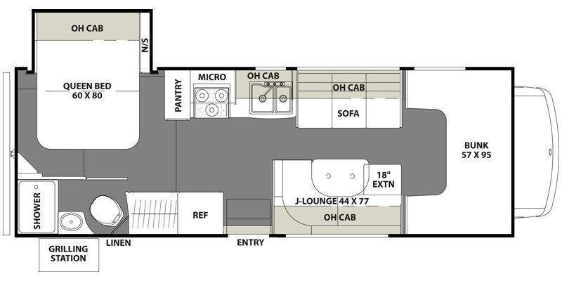
2017 Coachmen Freelander 26RS Specifications
Spec, Photos, and Model Information
-
Start Price$87,905
Vehicle Specifications
2017 Coachmen Freelander 26RS
-
Air ConditioningStandard
-
Air Conditioning (BTUs)13500
-
AwningStandard
-
Number Of Bathrooms1
-
Bathroom SinkStandard
-
Max Sleeping Count8
-
Fuel Capacity (gal)55
-
Fuel Capacity (l)208.2
-
Interior Height (in)83
-
Interior Height (mm)2108.2
-
Length (ft/ft)27
-
Length (ft/in)5
-
Length (m)8.4
-
Chassis BrandFord
-
Displacement (l)6.8
-
Engine Brand NameTriton®
-
Engine TypeV10
-
Fuel TypeGas
-
Horsepower (bhp)305
-
Exterior LadderStandard
-
Freeze Proof InsulationStandard
-
GeneratorStandard
-
Heater (BTUs)30000
-
Total Black Water Tank Capacity (gal)31
-
Total Black Water Tank Capacity (l)117.3
-
Total Fresh Water Tank Capacity (gal)50
-
Total Fresh Water Tank Capacity (l)189.3
-
Total Gray Water Tank Capacity (gal)31
-
Total Gray Water Tank Capacity (l)117.3
-
Generic Type (Primary)Class C
Find 2017 Coachmen Freelander 26RS for sale
Related RVs
Related Articles
Do You Need a Special License to Drive an RV?
Most states do not require a special license to drive an RV weighing under 26,000 lbs. We’ve compiled each state’s RV license requirements, CDL or other rules for 2022.
RV Spotlight: The Winnebago LeSharo
This vintage Class B RV offers many traits that are still appealing to RV shoppers today.
























