2017 CrossRoads Sunset Trail Super Lite SS210FK Specifications
Spec, Photos, and Model Information
Vehicle Specifications
2017 CrossRoads Sunset Trail Super Lite SS210FK
-
Air ConditioningStandard
-
Air Conditioning (BTUs)13500
-
AwningStandard
-
Number Of Bathrooms1
-
Bathroom SinkStandard
-
Max Sleeping Count4
-
Length (ft/ft)25
-
Length (ft/in)11
-
Length (m)7.9
-
DVD PlayerStandard
-
Exterior LadderNot Available
-
GeneratorNot Available
-
Heater (BTUs)30000
-
Total Black Water Tank Capacity (gal)30
-
Total Black Water Tank Capacity (l)113.6
-
Total Fresh Water Tank Capacity (gal)43
-
Total Fresh Water Tank Capacity (l)162.8
-
Total Gray Water Tank Capacity (gal)60
-
Total Gray Water Tank Capacity (l)227.1
-
Generic Type (Primary)Travel Trailer
-
Revision StatusNew
-
Kitchen / Living Area Flooring TypeCarpet / Vinyl
-
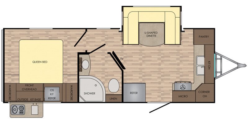
Kitchen Table ConfigurationU-shaped Dinette
-
Leveling Jack TypeFront Manual / Rear Manual
-
Master BedroomStandard
-
Master Bedroom Flooring TypeVinyl
-
Power Retractable Entry StepsNot Available
-
Basic Warranty (Months)12
-
Total Propane Tank Capacity (gal)9.4
-
Total Propane Tank Capacity (lbs)40
Find 2017 CrossRoads Sunset Trail Super Lite SS210FK for sale
Related RVs
Related Articles
What Are The Different RV Classes?
Recreational vehicles are available in three main classes. Here's how to tell them apart from one another.
Airstream Announces 'Slate Edition' Touring Coach Package for Popular Interstate Ext Class B RV
Only 75 examples will be built with this unique, high-end interior package.
























