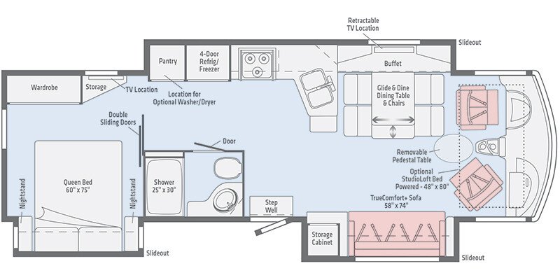
2019 Winnebago Adventurer 33C Specifications
Spec, Photos, and Model Information
-
Start Price$175,362
Vehicle Specifications
2019 Winnebago Adventurer 33C
-
Air ConditioningStandard
-
Air Conditioning (BTUs)17000
-
AwningStandard
-
Number Of Bathrooms1
-
Bathroom SinkStandard
-
Max Sleeping Count5
-
Fuel Capacity (gal)80
-
Fuel Capacity (l)302
-
Interior Height (in)80
-
Interior Height (mm)2032
-
Length (ft/ft)34
-
Length (m)10.4
-
DVD PlayerStandard
-
Chassis BrandFord
-
Displacement (l)6.8
-
Engine Brand NameTriton®
-
Engine TypeV10
-
Fuel TypeGas
-
Horsepower (bhp)320
-
Exterior LadderStandard
-
Freeze Proof InsulationStandard
-
GeneratorStandard
-
Heater (BTUs)35000
-
Total Black Water Tank Capacity (gal)39
-
Total Black Water Tank Capacity (l)147.6
-
Total Fresh Water Tank Capacity (gal)64
-
Total Fresh Water Tank Capacity (l)242.3
-
Total Gray Water Tank Capacity (gal)60
-
Total Gray Water Tank Capacity (l)227.1
-
Generic Type (Primary)Class A
Find 2019 Winnebago Adventurer 33C for sale
Related RVs
Related Articles
Best Class A RVs for 2022
These are the best class A motorhomes: smallest, diesel, luxury, cheapest, and for winter living.
Best RV Parks and Resorts in Texas
We ranked the best RV parks and resort in Texas for 2022.
























