Browse By Year
2008 2008 Forest River Wildcat 28RKBS East Coast Specifications
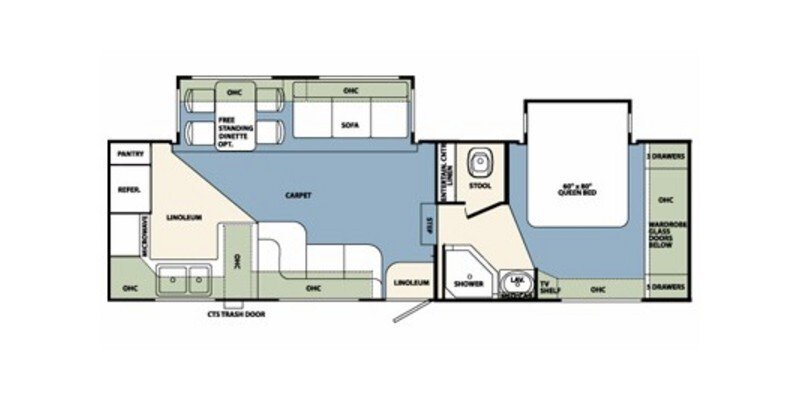
Spec, Photos, and Model Information
-
Start Price$34,171
Vehicle Specifications
2008 Forest River Wildcat 28RKBS East Coast
-
Air ConditioningStandard
-
Air Conditioning (BTUs)13500
-
AwningStandard
-
Number Of Bathrooms1
-
Bathroom SinkStandard
-
Max Sleeping Count8
-
Interior Height (in)76
-
Interior Height (mm)1930.4
-
Length (ft/ft)30
-
Length (ft/in)3
-
Length (m)9.2
-
DVD PlayerStandard
-
Exterior LadderStandard
-
Freeze Proof InsulationStandard
-
Heater (BTUs)30000
-
Total Black Water Tank Capacity (gal)50
-
Total Black Water Tank Capacity (l)189.3
-
Total Fresh Water Tank Capacity (gal)56
-
Total Fresh Water Tank Capacity (l)212
-
Total Gray Water Tank Capacity (gal)100
-
Total Gray Water Tank Capacity (l)378.5
-
Generic Type (Primary)Fifth Wheel
-
Kitchen / Living Area Flooring TypeCarpet / Vinyl
-
Kitchen Table ConfigurationBench Seats
-
Leveling Jack TypeFront Power / Rear Power
-
Master BedroomStandard
-
Master Bedroom Flooring TypeCarpet
-
Power Retractable Entry StepsNot Available
-
Basic Warranty (Months)12
-
MSRP34171
Find 2008 Forest River Wildcat 28RKBS East Coast for sale
Related RVs
Related Articles
RV Spotlight: The Winnebago LeSharo
This vintage Class B RV offers many traits that are still appealing to RV shoppers today.
The GMC MotorHome
The GMC MotorHome: A forgotten '70s relic becomes a 21st-century collectible.
























